AGIR Agence
Télécharger la fiche

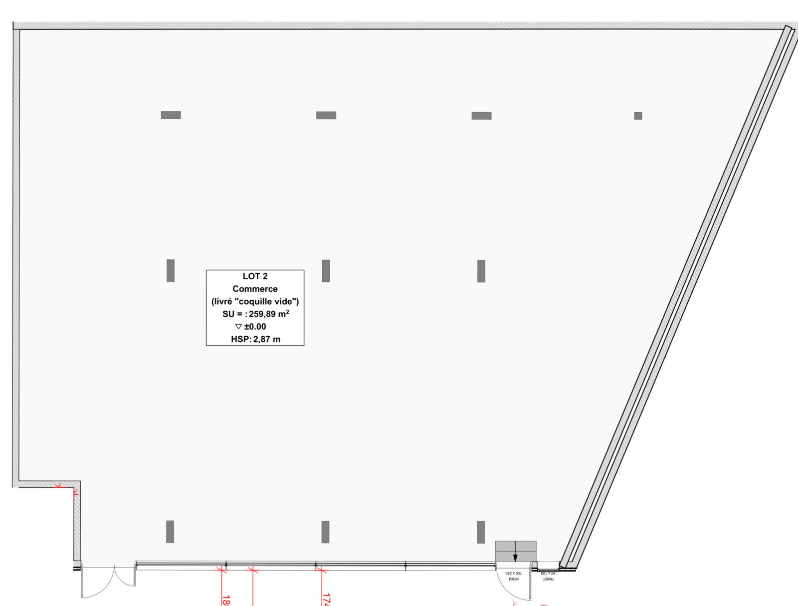
Local commercial 259.89 m²

Grabels (34790)
859 509 € TTC* * TTC : Toutes Taxes Comprises Référence 1429.2.LFC

A propos de ce bien

Montpelier banlieue- Grabels - Quartier Valsière, nous vous proposons un local commercial de 259,89 m², toute destination hors Restauration dans une résidence de 50 logements située à Grabels.

Disponible au 1er semestre 2025, ce local est idéalement situé proche de l'hôpital et à proximité immédiate d'un arrêt de bus.

Livré avec vitrine, vitrage de sécurité 44.2 – 16 – 44.2.

L’accès aux locaux se fait directement depuis la voie publique.

Ce local livré en coque brute dispose également d'un accès à l'extérieur. Fluide et réseaux (eaux, assainissement et VMC) en attente, fourreaux aiguillés et étiquetés en attente pour fibre optique, téléphonie et électricité.

Possibilité de 5 parkings extérieurs à 10 800 €/U.

Prix HT du local : 716 257 €, TVA 20 % : 143 252 € récupérable si assujetti.

Pour plus d'information nous contacter.

Caractéristiques de ce bien

Activités

  • Type de transaction Local commercial

Agencement

  • Superficie m2 259,89 m²
  • Ascenseur 1

Secteur

  • Code postal 34790
  • Ville Grabels

Composition du bien

Rez-de-chaussée

  • salle

Calcul des mensualités

* Champs obligatoires

Diagnostics énergétiques

DPE
GES
DPE vierge

Informations financières

Prix de vente TTC honoraires inclus 859 509 €
Les honoraires d'agence seront intégralement à la charge du vendeur