AGIR Agence
Télécharger la fiche

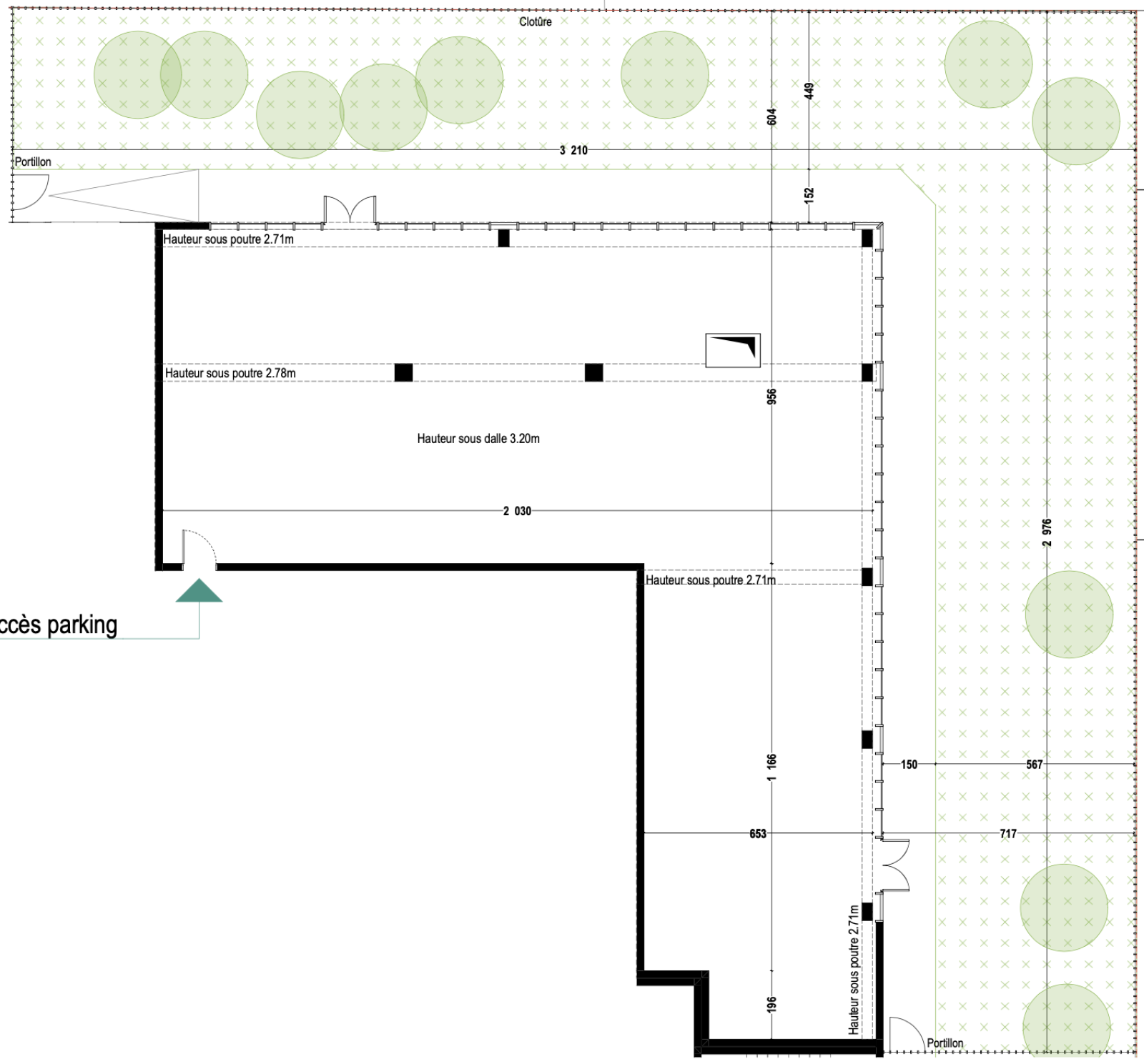
Local commercial 278.21 m²

Ris-Orangis (91130)
611 600 € TTC* * TTC : Toutes Taxes Comprises Référence 1675-A-RISORANGIS-R

A propos de ce bien

RIS-ORANGIS (91) - Nous vous proposons à la vente un local commercial de 278,21m² avec jardin privatif de 365,98m², situé en rez-de-chaussée d'une résidence récente au coeur du quartier Le Clos Langlet. Le bien bénéficie d'un emplacement stratégique, à proximité de l'autoroute A6 (à 1,5km), de l'ancienne RN7 (à 1km) et la route départementale reliant Corbeil-Essonnes, Grigny et Viry-Châtillon. La gare RER D, à seulement 800 mètres, permet de rejoindre Paris en 30 minutes. Le local est livré brut de béton, avec fluides en attente et vitrines à poser à charge acquéreurs permettant un aménagement sur mesure selon vos besoins. Toutes les activités sont envisageables, sauf restauration, discothèque et garage. Un second local de 177m², au prix de 389 542€TTC, est également disponible. Possibilité d'acquérir jusqu'à 8 emplacements de stationnement en RDC au prix de 5 000 € HT/unité. Frais de notaire réduits et TVA récupérable si assujetti. Intéressé(e) ? Contactez-nous dès aujourd’hui pour plus d’informations ou une étude personnalisée de votre projet.

Caractéristiques de ce bien

Activités

  • Type de transaction Local commercial

Agencement

  • Superficie m2 278,21 m²

Secteur

  • Code postal 91130
  • Ville Ris-Orangis

Diagnostics & compléments

  • Année de construction 2025

Composition du bien

Rez-de-chaussée

  • salle 278.21 m²
  • Jardin 365.98 m²

Calcul des mensualités

* Champs obligatoires

Diagnostics énergétiques

DPE
GES
DPE non concerné

Informations financières

Prix de vente TTC honoraires inclus 611 600 €
Honoraires TTC à la charge acquéreur 6,29 %