AGIR Agence
Télécharger la fiche

Local commercial 2 pièce(s) 111 m²

Cesson (77240)
199 800 € TTC* * TTC : Toutes Taxes Comprises Référence 1715-LC-CESSON-R

A propos de ce bien

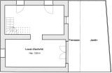
CESSON (77) - Nous vous proposons un local commercial neuf de 111m², répartis en deux niveaux de 54m² en RDC et 57² en R+1, avec 13m² de terrasse et 33m² de jardin, au sein d'une résidence récente et sécurisée, disponible au 2ème semestre 2027. Livré en coque brute, avec vitrine, fluide et réseaux en attente. Idéalement placé parmi les villages du plateau Briard à 5km de Melun, à proximité du centre-ville, avec ses lignes de bus, la Gare de Cesson à 700m (RER D reliant Paris en 50min) et un accès rapide à l'A105 à 4km. Toutes activités autorisées (sous réserve de validation par la commune). Frais de notaire réduits. Environnement arboré et piétonnisé. Exposition Est. Place de parking incluse. TVA récupérable si assujetti. Contactez-nous pour plus de renseignements.

Caractéristiques de ce bien

Activités

  • Type de transaction Local commercial

Agencement

  • Superficie m2 111 m²
  • Vitrine(s) En attente
  • Vue Arborée
  • Nombre de pièces 2

Equipements

  • Chauffage individuel : chaudière (gaz)

Secteur

  • Code postal 77240
  • Ville Cesson

Composition du bien

Rez-de-chaussée

  • salle 54 m²
  • Jardin 33 m²
  • terrasse 13 m²

Etage 1

  • salle 57 m²

Calcul des mensualités

* Champs obligatoires

Diagnostics énergétiques

DPE
GES
DPE ANCIENNE VERSION

Informations financières

Prix de vente TTC honoraires inclus 199 800 €
Les honoraires d'agence seront intégralement à la charge du vendeur